Project Description

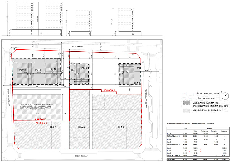
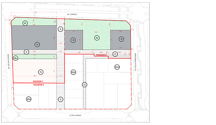
PLA DE MILLORA URBANA ILLA CARRILET · L’HOSPITALET DE LLOBREGAT, BARCELONA · 2008-2012 · AGÈNCIA DE DESENVOLUPAMENT URBÀ · 32.828 m2
PLAN DE MEJORA URBANA ILLA CARRILET · L’HOSPITALET DE LLOBREGAT, BARCELONA · 2008-2012 · AGENCIA DE DESARROLLO URBANO · 32.828 m2
PLAN FOR THE URBAN IMPROVEMENT OF ILLA CARRILET · L’HOSPITALET DE LLOBREGAT, BARCELONA · 2008-2012 · URBAN DEVELOPING AGENCY · 32.828 m2
TORNA A GALERIA / VUELVE A GALERIA / RETURN TO PORTFOLIO